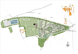
Aylsham Football Club

The proposal allows the football club to meet its aspirations to become a leading football centre in the county. Having become an FA Charter Standard Club, this is the next stage in the long term plan.

The project has provided new permanent pitches ranging from training to matchday and a new clubhouse and changing facilities and the club now has 29 teams including those for girls and ladies.

The club also provides a real presence to encourage community involvement via some of the best football facilities in Norfolk - there is a new social and recreational focus to enrich player and family experience and opportunities for wide-ranging community use.

In addition to the new community facilities, 250 new homes are being provided including much needed affordable units.