David Wilson Horsford

Horsford has been identified by Broadland District Council as a Service Village with good facilities.

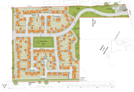
Chaplin Farrant's masterplanners have provided proposals that include a generous central open space with landscape buffers to the north and south boundaries.

The layout is broken down into a variety of character areas including a rural countryside edge, streets, home zones and a more formal “Village Green” surrounded by linked dwellings.

The proposals provide a mixture of private open market and affordable homes including fully wheelchair accessible bungalows, 1 & 2 bedroom flats and houses.